- 7 Rooms
- 4 Bedrooms
- 3 Bathrooms
- 155 m2
- Building 1850
Description
Living space : 155 m2 approx.
7 rooms /
4 bedrooms /
1 Bathroom
2 Bathroom
3 Toilets
Living room
40 m2
Ground
219 m2
Terrace
35 m2
Building : Stones (1850)
Restoration : 2010
State : Excellent
Exposure : South-East
View : Pleasant
Main heating : Reversible air-conditioning
Water : Water of city
Sanitation : Sewage system
Proximity
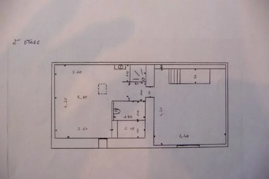
| Room | Surface | Informations |
|---|---|---|
| Living room | 40 m2 |
|
| Dining room | 10.8 m2 |
|
| Equipped kitchen | 10.5 m2 |
|
| Laundry | 5.4 m2 |
|
| Workroom | 10.8 m2 |
|
| Playroom | 2.4 m2 |
|
| Room | Surface | Informations |
|---|---|---|
| Release | 5.5 m2 |
|
| Room 1 | 10.7 m2 |
|
| Room 2 | 14.2 m2 |
|
| Bathroom | 6 m2 |
|
| Toilets | 1.35 m2 |
|
| Room | Surface | Informations |
|---|---|---|
| Room 3 | 16.5 m2 |
|
| Room 4 | 17 m2 |
|
| Toilets | 2 m2 |
|







