- 6 Pièces
- 3 Chambre(s)
- 1 Salle de bain
- 118 m2
- Construction 1800
Description
Surface totale habitable : 118 m2 env.
6 pièces /
3 chambres /
1 Salle de bain
2 Cabinets de toilette
Séjour
28 m2
Terrasse
12.4 m2
Garage
12.5 m2
Dépendances
2 m2
Construction : Pierre (1800)
Restauration : 2002
État : Très bon
Exposition : Nord-Est
Vue : Agréable
Chauffage principal : Central gaz de ville
Chauffage complémentaire : Climatisation réversible
Alimentation en eau : Eau de ville
Assainissement : Tout à l'égout
Proximité
| Pièce | Surface | Informations |
|---|---|---|
| Espace détente | 21 m2 |
|
| Atelier | 13.6 m2 |
|
| Garage | 12.5 m2 |
|
| Local | 2 m2 |
|
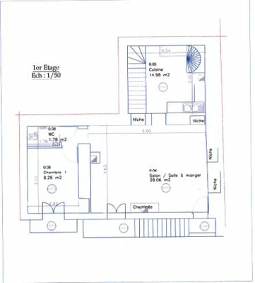
| Pièce | Surface | Informations |
|---|---|---|
| Séjour / Salle à manger | 28 m2 |
|
| Cuisine équipée | 15 m2 |
|
| Dégagement | 1.5 m2 |
|
| Chambre 1 | 9.29 m2 |
|
| Toilettes | 1.78 m2 |
|
| Pièce | Surface | Informations |
|---|---|---|
| Dégagement | 5.61 m2 |
|
| Chambre 2 | 13 m2 |
|
| Chambre 3 | 11.5 m2 |
|
| Salle de bains | 9.4 m2 |
|
| Terrasse | 12.4 m2 |
|
| Toilettes | 1 m2 |
|







