• 2 Rooms
  • 1 Bathroom
  • 35.1 m2
  • Building 1800

Description

Beautiful flat in the center of Villeneuve les Avignon.

Living space : 35.1 m2
2 rooms / /

1 Bathroom
1 Toilet

Living room
20.6 m2

Terrace
10.3 m2

Building : Stones (1800)
Restoration : 2015
State : Very good

Exposure : North-South
View : Terrace

Main heating : Electrical

Water : Water of city
Sanitation : Sewage system

Joint ownership fees : 200 € / an
Number of units : 5
Lot of charm
Good environment
Terrace
Proximity
Downtown
All convinience
Energy class : D 230 kWhEP/m2.an
GES Class : E 55 kgeqCO2/m2.an
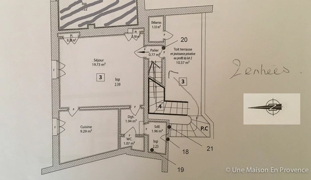
Ground floor
Room Surface Informations
Hall 1 m2
Ground
Tiling
1st floor
Room Surface Informations
Living room 20.6 m2
Ground
Floor
Equipped kitchen 9.4 m2
Ground
Floor
Release 3 m2
Ground
Floor
Playroom 1.94 m2
Ground
Tiling
Outfits
1 basin, Shower
Toilets 1.14 m2
Ground
Cap concrete
Terrace 10.1 m2
Ground
Tiling
Separete annexe 1.13 m2
Ground
Tiling

David Feraux

1 place Jean Jaures, 30400 Villeneuve les Avignon
+33 (0)6 11 77 34 18

Contact Me

Schedule a showing?
Call WhatsApp

Compare Listings

David Feraux