- 5 Rooms
- 3 Bedrooms
- 2 Bathrooms
- 120 m2
- Building 1973
Description
Living space : 120 m2 approx.
5 rooms /
3 bedrooms /
2 Bathroom
2 Toilets
Living room
45 m2
Ground
606 m2
Terrace
60 m2
Garage
30 m2
Dependencies
3.8 m2
Building : Midle traditional (1973)
Restoration : 2021
State : Very good
Exposure : South-West
View : Garden
Main heating : Reversible air-conditioning
Water : Water of city
Sanitation : Sewage system
Notary fees : 33 669 €
Property taxes : 2 054 €
Proximity
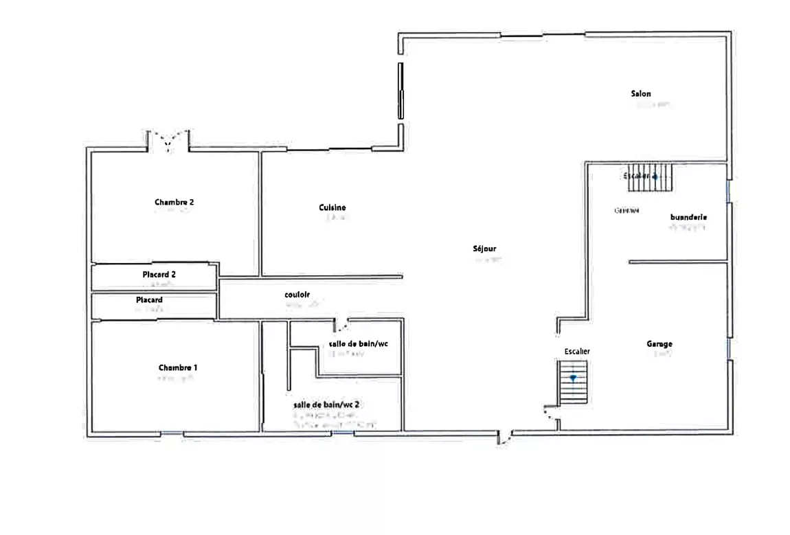
| Room | Surface | Informations |
|---|---|---|
| Hall | 7 m2 |
|
| Living room / Kitchen | 67 m2 |
|
| Release | 4.6 m2 |
|
| Room 1 | 17.6 m2 |
|
| Room 2 | 14.3 m2 |
|
| Release | 0.7 m2 |
|
| Garage | 20.6 m2 |
|
| Linen room | 9 m2 |
|
| Garden Sheds | 3.8 m2 |
|




























