- 5 Pièces
- 3 Chambre(s)
- 2 Salle de bains
- 97 m2
- Construction 2002
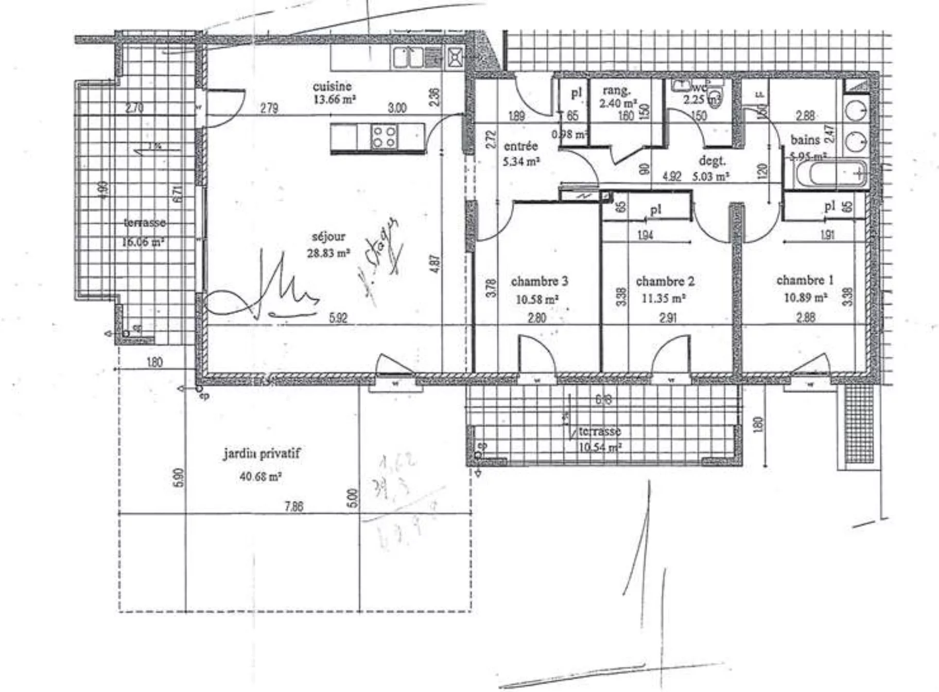
Description
Surface totale habitable : 97 m2 env.
5 pièces /
3 chambres /
2 Salles d'eau
2 Cabinets de toilette
Séjour
42.3 m2
Terrasse
63 m2
Garage
16.4 m2
Construction : Semi-traditionnelle (2002)
État : Excellent
Exposition : Sud-Est
Vue : Jardin
Chauffage principal : Gaz
Chauffage complémentaire : Climatisation
Alimentation en eau : Eau de ville
Assainissement : Tout à l'égout
Syndic de copropriété : Professionnel
Nombre de lots : 68
Frais de notaire : 33 669 €
Impôts fonciers : 979 €
Proximité
| Pièce | Surface | Informations |
|---|---|---|
| Hall d'entrée | 6 m2 |
|
| Séjour / SAM / Cuisine | 42.3 m2 |
|
| Dégagement | 3.5 m2 |
|
| Buanderie | 1.5 m2 |
|
| Chambre 1 | 10 m2 |
|
| Chambre 2 | 12 m2 |
|
| Suite parentale | 18.3 m2 |
|
| Salle d'eau | 3.3 m2 |
|
| Pièce | Surface | Informations |
|---|---|---|
| Garage | 16.4 m2 |
|




























